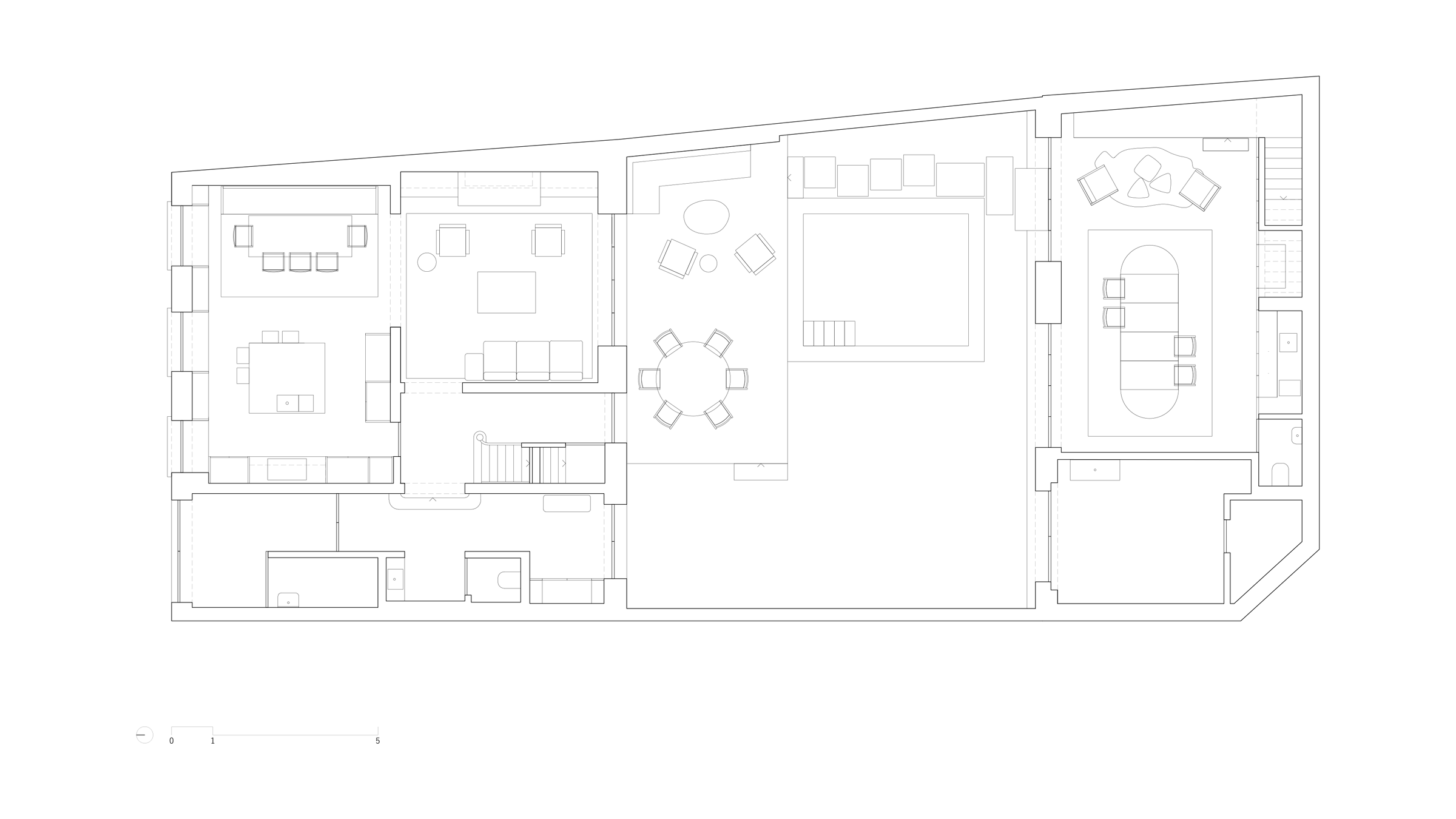
DK Residence
In the historic centre of Ghent, a venerable brick townhouse dating from 1838, has been sensitively renovated for a young family. The result is a seamless blend of historical character and modern living
2020 - 2024
Gent - Belgium
Gent - Belgium
Private Residence
Renovation
Renovation
Photography
Piet-Albert Goethals
Piet-Albert Goethals


Muted walls and soft light frame the dining nook like a painting—inviting and intimate.

Muted walls and soft light frame the dining nook like a painting—inviting and intimate.






The oversized pendant brings a quiet drama, casting a warm glow over late dinners and longer conversations.


This moody, fully dark space stands in contrast to the lighter areas of the house — a quiet retreat to disappear into.

This moody, fully dark space stands in contrast to the lighter areas of the house — a quiet retreat to disappear into.












